EDIFICIOS SINGULARES Y ARQUITECTURA SOSTENIBLE
CASA KEW DE JACKSON CLEMENTS
BURROWS
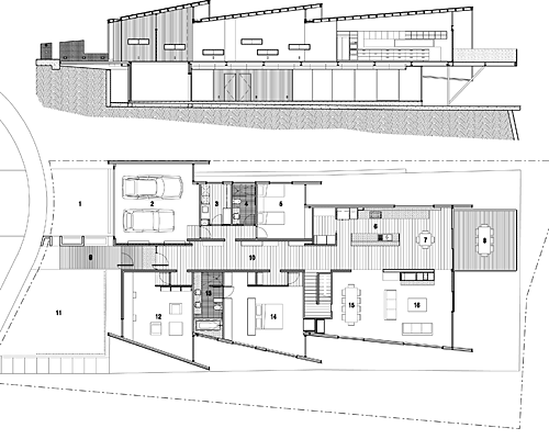
Las características del solar han determinado la forma de esta vivienda diseñada porJackson Clements Burrows a las afueras de Melbourne. La casa esta situada al final de una calle sin salida, en un solar residual al borde de un pendiente que ofrece unas inpresionantes vistas sobre un valle cercano. El proyecto se desarrolla sobre la parte más alta del solar, aprovechando el desnivel. El edificio se adapta al terreno como si fuese un insecto con una singular composición de tres volúmenes apoyados sobre múltiples pilares.
Al final encontramos una terraza pensada para disfrutar de la vistas. El resultado es una vivienda de espacios dinámicos y múltiples niveles. Los volúmenes son sencillos y rectos, aunque la sucesión de las distintas “cajas” aporta cierto movimiento a la composición. El edificio establece un diálogo continuo con el entorno y se percibe como parte integral del paisaje gracias al revestimiento exterior de chapa metálica de dos colores.
La singular composición de la vivienda y la ligereza de las fachadas permite establecer una relación estrecha entre interior y exterior. El interior es sobrio, destacando el uso de madera natural combinada con el color blanco. Su diseño está pensado para reducir el consumo de energía, con técnicas pasivas, orientando la casa hacia el norte o añadiendo pequeñas aberturas en el oeste para favorecer la ventilación interior.
Fuente: www.disenoyarquitectura.net








0 comentarios